Popis nemovitosti
Prodej novostavby rodinného domu – Česká Kamenice
Představujeme vám jedinečnou příležitost ke koupi moderní novostavby samostatně stojícího rodinného domu v klidné části České Kamenice. Nemovitost se nachází na atraktivním okraji obce – v bezprostřední blízkosti přírody a zároveň s výbornou dostupností do centra města. Výstavba právě probíhá, plánované dokončení a kolaudace jsou stanoveny na 30. 4. 2026.
Bezpečný model financování
Prodávající garantuje kompletní dostavbu domu včetně terénních úprav a oplocení, a to dle schváleného projektu a přiložené vizualizace. Kupní cenu hradíte až po dokončení stavby a kolaudaci. Ve fázi výstavby je splatná pouze záloha ve výši 5 % z kupní ceny, a to na základě rezervační smlouvy a smlouvy o smlouvě budoucí kupní.
První ze dvou domů je již rezervován. Nyní máte možnost zakoupit druhý – za zvýhodněných podmínek.
Základní parametry domu
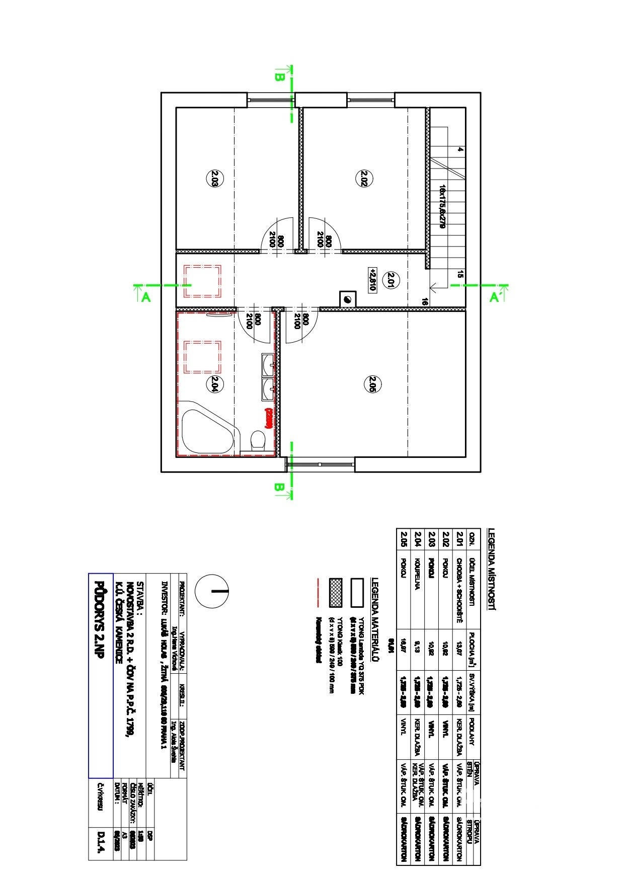
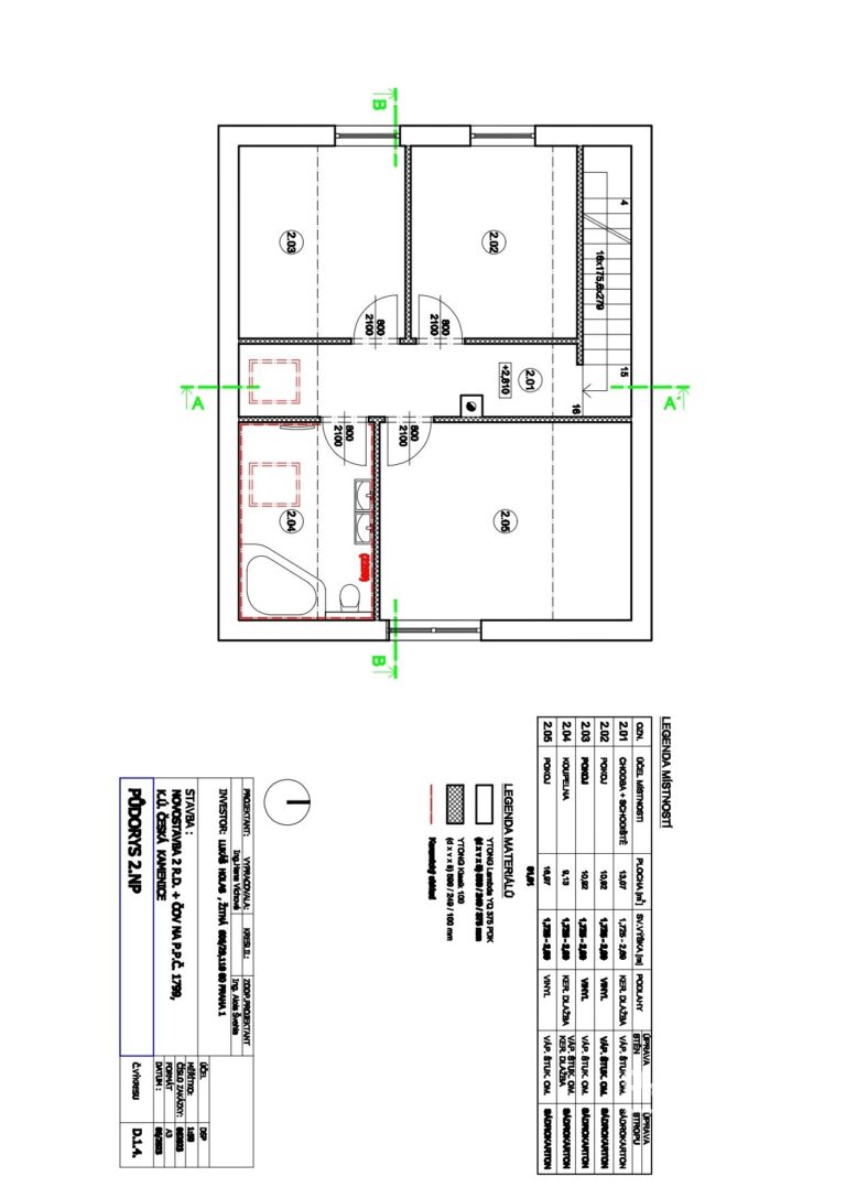
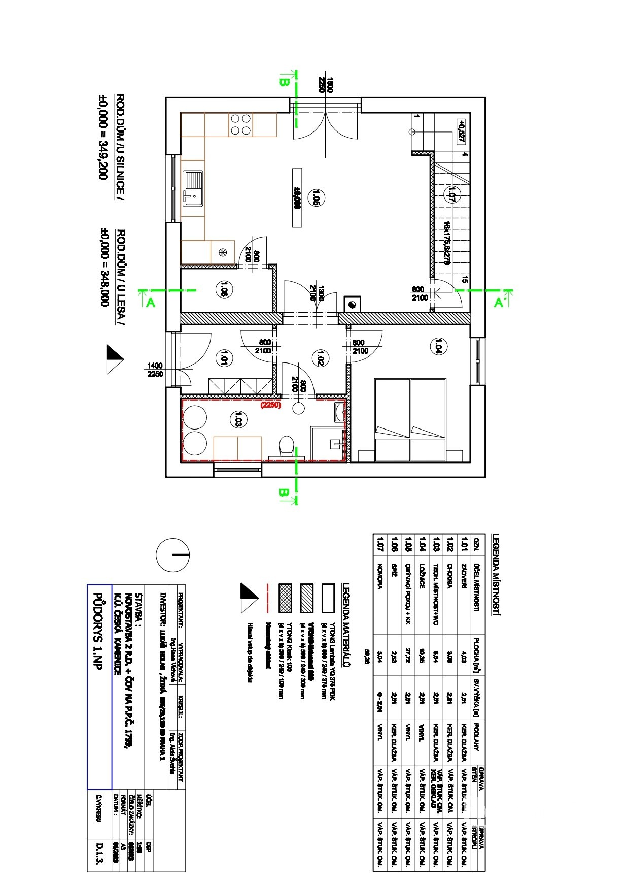
Dispozice: 5+kk
Zastavěná plocha: 76 m²
Užitná plocha: cca 120 m²
Pozemek: cca 850 m²
Vytápění: tepelné čerpadlo, podlahové topení
Energetická náročnost: třída B – velmi úsporná (dle PENB)
Střecha: sedlová, betonová taška
Zdivo: tvárnice Porfix
Okna: plastová s izolačním trojsklem
Podlahy: vinylová krytina
Dispozice a standardy
Každý dům nabízí:
Prostorný obývací pokoj s kuchyňským koutem
Tři ložnice
Pracovnu
Koupelnu
Samostatné WC
Technickou místnost
Zpevněnou plochu pro parkování dvou vozidel před domem
Dokončení proběhne ve vysokém standardu s důrazem na nízké provozní náklady, moderní technologie a funkční dispoziční řešení.
Výhody této nabídky
Krásná a klidná lokalita vhodná pro rodinný život
Moderní nízkoenergetický dům
Možnost ovlivnit finální podobu interiéru během výstavby
Výborná občanská vybavenost v docházkové vzdálenosti
Bezpečný model financování – platba až po kolaudaci
Dokumentace a financování
K nahlédnutí je připravena kompletní projektová dokumentace. Zájemcům rádi poskytneme také podmínky zvýhodněného financování při koupi ve fázi výstavby.
Pro více informací a domluvení schůzky nás neváhejte kontaktovat.
Parametry
| Okres | Děčín |
| Lokalita | Česká Kamenice |
| Velikost | Rodinný |
| Užitná plocha | 152 m² |
| Plocha pozemku | 890 m² |
| Počet podlaží | 2 |
| Budova | Cihlová |
| Stav objektu | Ve výstavbě |
| Typ domu | Patrový |
| Poloha objektu | Samostatný |
| Umístění objektu | Klidná část obce |
| Zástavba | Obytná |
| Energetická náročnost | B - Velmi úsporná |
| Ukazatel ENB | 68 kWh/m2 za rok |
| Ukazatel ENB - podle vyhlášky | vyhláška 78/2013 Sb |
| Rok výstavby | 2025 |
Fotogalerie
Máte zájem o tuto nemovitost?
Kontaktujte makléře

























