Popis nemovitosti
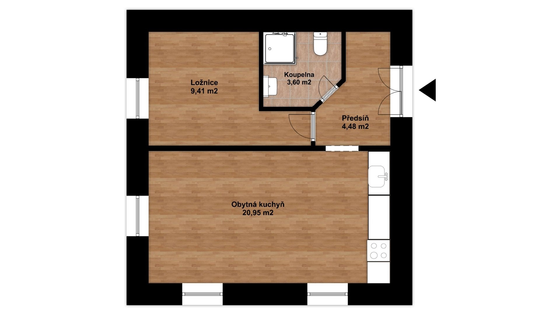
Hledejte výhodnou investici? Prázdný byt 2kk o velikosti 38m2 v historickém domě v centru Hostinné čeká na vaši kreativitu – obnažené klenby, vysoké stropy a světlé místnosti připravené na moderní úpravy.
Hostinné je historické město v Krkonošském podhůří, známé svou městskou památkovou zónou, výrobou papíru a hlavně tajemnými obry na náměstí, kteří podpírají radnici. Leží na soutoku Labe a Čisté, má zhruba 4 200 obyvatel a nabízí mix historie.
Nabízíme prázdný prostor pouze s holými zdmi, žádné staré vybavení, prázdné místnosti jen s původními klenbami a vysokými stropy, které dodají bytu jedinečný charakter. Bez jakéhokoli vybavení , žádná koupelna, WC ani instalace. To znamená plnou svobodu pro nové majitele, kteří si chtějí vytvořit moderní 2kk byt od začátku. Navrhněte si vlastní dispozici, umístění koupelny a kuchyně pro maximální využití.
Tento byt bude jednou nejen příjemným místem k bydlení, ale i výbornou investicí. V případě zájmu o bližší informace či domluvení prohlídky mě prosím kontaktujte.
Parametry
| Okres | Trutnov |
| Lokalita | Dolní brána 49, Hostinné |
| Velikost | 2+kk |
| Užitná plocha | 38 m² |
| Počet podlaží | 3 |
| Podlaží umístění | 1. NP |
| Budova | Cihlová |
| Stav objektu | Dobrý |
| Poloha objektu | Rohový |
| Umístění objektu | Centrum obce |
| Zástavba | Obchodní a obytná |
| Energetická náročnost | G - Mimořádně nehospodárná |
| Vlastnictví | Osobní |
Fotogalerie
Máte zájem o tuto nemovitost?
Kontaktujte makléře







