Popis nemovitosti
Prohlídkový den v pátek 7.11. v odpoledních hodinách, pro objednání volejte na: 774 987 110
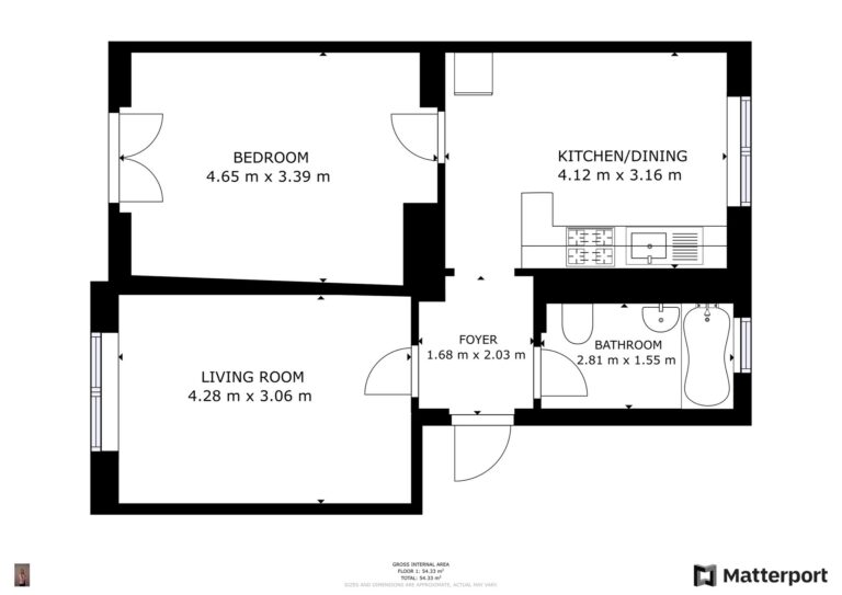
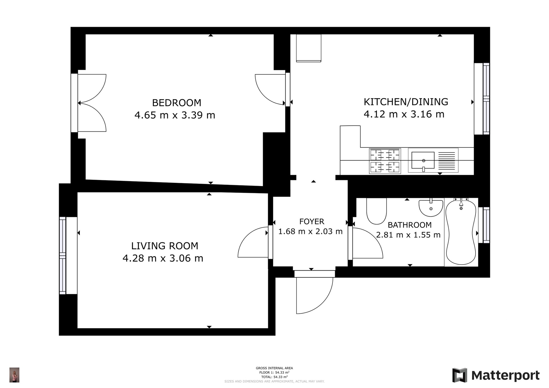
Hledáte bydlení pro rodinu, pár nebo jednotlivce v klidném městečku s dobrou vybaveností? Tento moderně zrekonstruovaný byt 2+1 v osobním vlastnictví Vás zaujme – nachází se v cihlové budově v prvním vyvýšeném nadzemním podlaží a má celkovou plochu 46,5 m².
O nemovitosti
• Dispozice: 2+1
• Podlaží: 1. NP (ze 3)
• Po rekonstrukci
• Vlastnictví: osobní
• Sklep: úložný prostor o velikosti 4 m²
️ Částečně vybavený – kuchyňská linka se spotřebiči, stůl a židle, skříňky v kuchyni i na chodbě, lednice (viz foto)
Výhody:
Horní Slavkov je menší město (cca 5 400 obyvatel) ležící v CHKO Slavkovském lese, jen 20 km od Karlových Varů.
Lokalita nabízí:
• historické centrum a kulturní památky (např. městské muzeum, kostel sv. Jiří)
• základní a mateřská škola, dětská hřiště
• pošta, Tesco a menší obchody
• dopravní dostupnost (vlak, autobus)
• praktický lékař, zubař
• příroda na dosah: lesopark, naučné stezky, cyklotrasy v oblasti Slavkovského lesa 
Vhodné pro:
• Rodiny hledající komfortní bydlení v klidném prostředí
• Páry nebo jednotlivce, kteří oceňují pohodlí, vybavení a snadnou dostupnost města
⸻
Byt je připraven k okamžitému předání. V případě zájmu vás rádi seznámíme s kompletní dokumentací ještě před osobní prohlídkou a také Vám pomůžeme zajistit financování.
Parametry
| Okres | Sokolov |
| Lokalita | Zahradní, Horní Slavkov |
| Velikost | 2+1 |
| Užitná plocha | 47 m² |
| Počet podlaží | 4 |
| Podlaží umístění | 1. NP |
| Budova | Cihlová |
| Stav objektu | Velmi dobrý |
| Umístění objektu | Sídliště |
| Zástavba | Obytná |
| Energetická náročnost | E - Nehospodárná |
| Ukazatel ENB | 239 kWh/m2 za rok |
| Ukazatel ENB - podle vyhlášky | vyhláška 78/2013 Sb |
| Vlastnictví | Osobní |
| Typ bytu | mezonet |
Fotogalerie
Máte zájem o tuto nemovitost?
Kontaktujte makléře















