Popis nemovitosti
Hledáte dům, kde si můžete vytvořit domov přesně podle svých představ?
V Miroslavi nabízíme rodinný dům s velkým potenciálem, ideální pro ty, kteří mají vizi a chtějí bydlet moderně, úsporně a po svém.
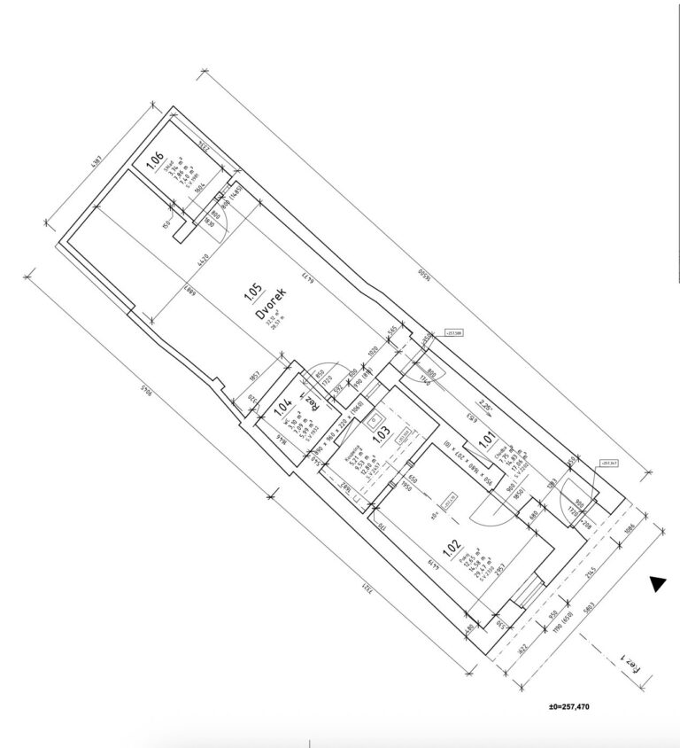
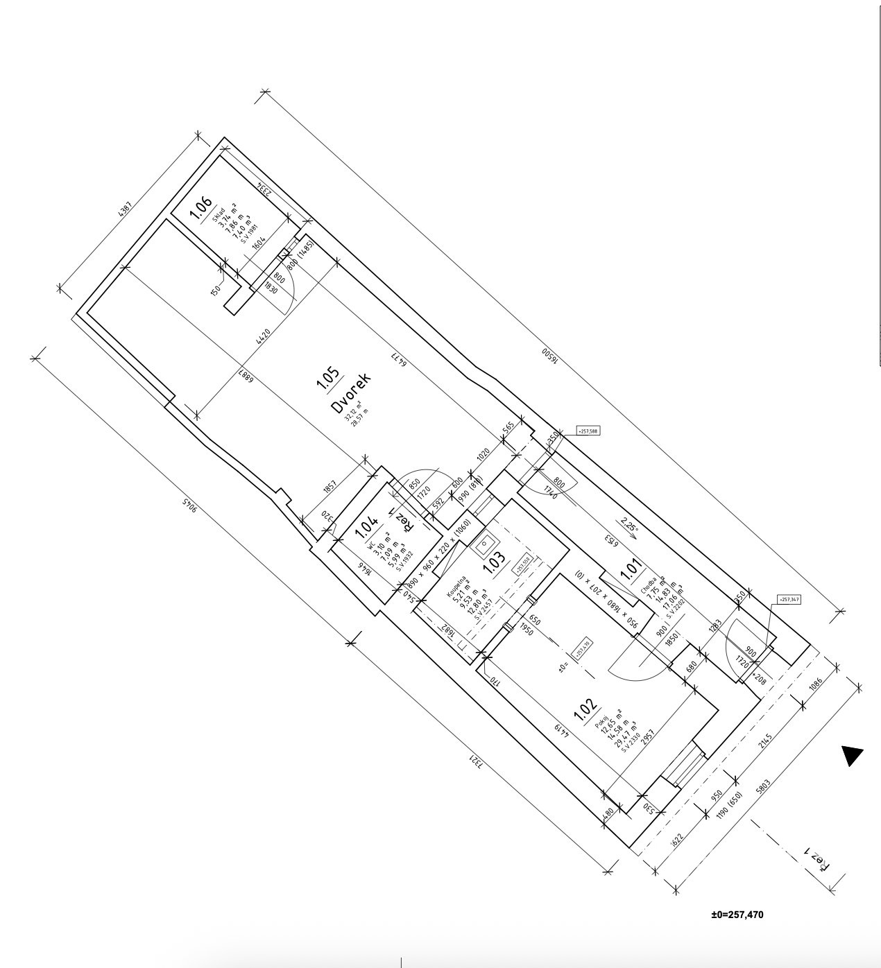
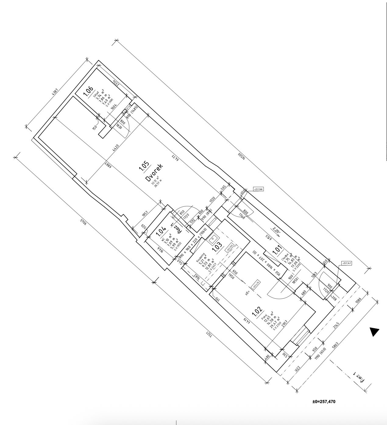
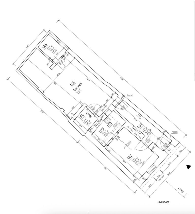
Součástí prodeje je architektonická studie, která rozšiřuje původní užitnou plochu na 88,40 m² a proměňuje dům v moderní open-space bydlení se zahrádkou. Návrh klade důraz na světlo, funkčnost a propojení interiéru s venkovním prostorem – ideální pro rodinné bydlení i rekreační využití.
Velkou výhodou je, že realizace rekonstrukce je navržena tak, aby postačovalo pouze ohlášení stavby, bez nutnosti stavebního povolení.
Odhadované náklady na rekonstrukci činí přibližně 1 800 000 Kč.
Dům je již napojen na elektřinu, vodovod i kanalizaci, což výrazně zjednodušuje a zrychluje celý proces rekonstrukce.
V přiložené galerii naleznete vizualizace a půdorysy, které vám pomohou představit si finální podobu domu po dokončení.
Lokalita – Miroslav
Miroslav se nachází přibližně 30 minut jízdy od Brna a nabízí kompletní občanskou vybavenost – školu, školku, obchody, restaurace i lékaře.
Díky výbornému vlakovému i autobusovému spojení je zajištěn pohodlný dojezd do Brna, Znojma i okolních měst.
Klidné prostředí, blízkost vinic a dostatek zeleně dělají z Miroslavi ideální místo pro rodinné bydlení i víkendový dům.
Shrnutí nabídky:
– užitná plocha po rekonstrukci: 88,40 m²
– architektonická studie v ceně
– odhadované náklady na rekonstrukci: cca 1,8 mil. Kč
– napojení na elektřinu, vodu a kanalizaci
– pouze ohlášení stavby, bez nutnosti stavebního povolení
– klidná a dobře dostupná lokalita
Parametry
| Okres | Znojmo |
| Lokalita | Brněnská, Miroslav |
| Velikost | Rodinný |
| Užitná plocha | 28 m² |
| Plocha pozemku | 85 m² |
| Budova | Smíšená |
| Stav objektu | Před rekonstrukcí |
| Typ domu | Přízemní |
| Poloha objektu | Řadový |
| Energetická náročnost | G - Mimořádně nehospodárná |
Fotogalerie
Máte zájem o tuto nemovitost?
Kontaktujte makléře




















