Prodej bytu (OV) 2+1 62,9 m², ul. Písečná, Chomutov

Písečná, Chomutov
2 990 000 Kč
včetně provize, včetně právního servisu
nebo hypoteční úvěr od 13 779 Kč
Kontakt
ID: 100577

Popis nemovitosti

Hledáte byt bez nutnosti rekonstrukce? Nebo investici k pronájmu?

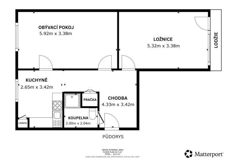
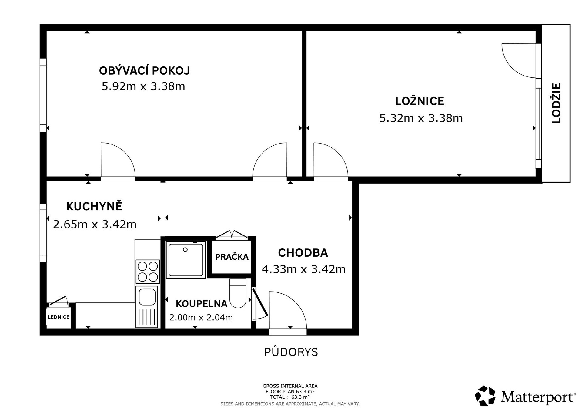
Nabízíme k prodeji byt v osobním vlastnictví 2+1 s lodžií o výměře 62,9 m² (podle prohlášení vlastníka) v Chomutově, ul. Písečná, který se nachází ve 2. podlaží zatepleného (PENB – D) panelového domu s výtahem.

Byt je po rekonstrukci – má nové rozvody elektřiny a vinilové podlahy. K dispozici je kuchyňská linka se spotřebiči (indukční varná deska, horkovzdušná trouba, lednička, mrazák a myčka) a vestavěná pračka v chodbě. Koupelna se sprchovým koutem a toaletou, s místem pro umyvadlo.

K bytu náleží sklep a parkování je možné na ulici před domem.

Vytápění, voda, ohřev vody a plyn jsou řešeny dálkově.

Ve městě je kompletní občanská vybavenost. V docházkové vzdálenosti – škola, školka, potraviny, restaurace, lékárna, dětské hřiště i venkovní posilovna. Nákupní park Chomutov cca 5 minut od domu a přibližně 20 minut od domu se nachází oblíbené Jezero Most s možností koupání a sportovních aktivit.

Vhodné jak pro vlastní bydlení, tak jako investice.

Máte zájem o tento byt? Kontaktujte mě pro více informací a termín prohlídky.

(Uvedené výměry jsou orientační. V případě více zájemců bude nemovitost prodána nejlepší nabídce a majitel si vyhrazuje právo vybrat kupujícího na základě jím zvolených kritérií. Veškeré zveřejněné údaje v tomto inzerátu mají pouze informativní charakter.)

Parametry

Okres Chomutov
Lokalita Písečná, Chomutov
Velikost 2+1
Užitná plocha 62 m²
Počet podlaží 6
Podlaží umístění 2. NP
Budova Panelová
Stav objektu Dobrý
Poloha objektu Řadový
Umístění objektu Sídliště
Zástavba Obytná
Energetická náročnost D - Méně úsporná
Ukazatel ENB 146 kWh/m2 za rok
Ukazatel ENB - podle vyhlášky vyhláška 264/2020 Sb
Vlastnictví Osobní

Máte zájem o tuto nemovitost?

Kontaktujte makléře