Popis nemovitosti
Ke koupi nabízím byt, vhodný pro začínající rodinu, případně investory o dispozicí 2+1, v osobním vlastnictví, v 6. nadzemním podlaží bytového domu s výtahem, který se nachází v Ústí nad Labem, ul. Družstevní.
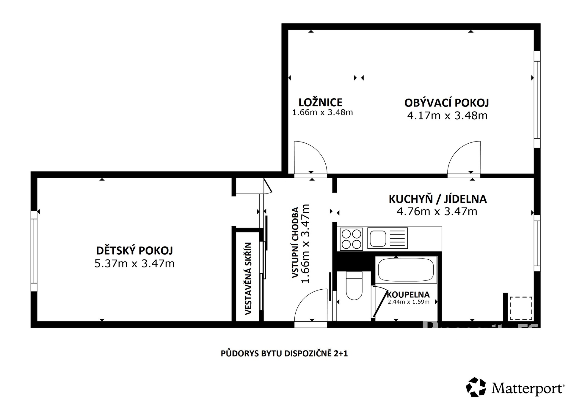
Dispoziční řešení bytu nabízí vstupní chodbu, prostorný obývací pokoj, kuchyň, ložnici a koupelnu s toaletou. Nabízený byt je v původním stavu, má umakartové bytové jádro, plastová okna. Podlahovou krytinu tvoří plovoucí podlaha v kombinaci s PVC. Velmi nízké měsíční náklady, lze získat na prohlídce. K bytu náleží sklepní kóje.
V současné době je byt díky vyhledávané lokalitě a jednoduchou dostupností na dálnici D8, vhodný, jak pro vlastní bydlení, tak i pro investory k dalšímu pronájmu. Zastávka MHD v blízkosti domu, do centra Ústí nad Labem 4km, Teplice 25km, Děčín 24km.
Město Ústí nad Labem disponuje kompletní občanskou vybaveností včetně mateřské, základní i vysoké školy, nemocnice, dětské hřiště, obchody, pošta, praktický i dětský lékař, oddíl fotbalu, či hokeje a jiné sportovní vyžití.
Pokud Vás nabídka zaujala, kontaktujte náš Prosperity tým pro více informací a sjednání konkrétního termínu prohlídky. V případě více vážných zájemců bude nemovitost rezervována s klientem, který podá nejlepší nabídku. Případné financování Vám zařídíme vlastním specialistou z ProsperityFS.
Parametry
| Okres | Ústí nad Labem |
| Lokalita | Družstevní 408, Ústí nad Labem |
| Velikost | 2+1 |
| Užitná plocha | 63 m² |
| Počet podlaží | 6 |
| Podlaží umístění | 6. NP |
| Budova | Panelová |
| Stav objektu | Dobrý |
| Poloha objektu | Řadový |
| Umístění objektu | Sídliště |
| Zástavba | Obchodní a obytná |
| Energetická náročnost | G - Mimořádně nehospodárná |
| Vlastnictví | Osobní |
Fotogalerie
Máte zájem o tuto nemovitost?
Kontaktujte makléře















