Popis nemovitosti
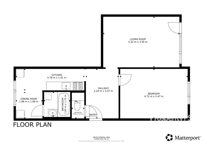
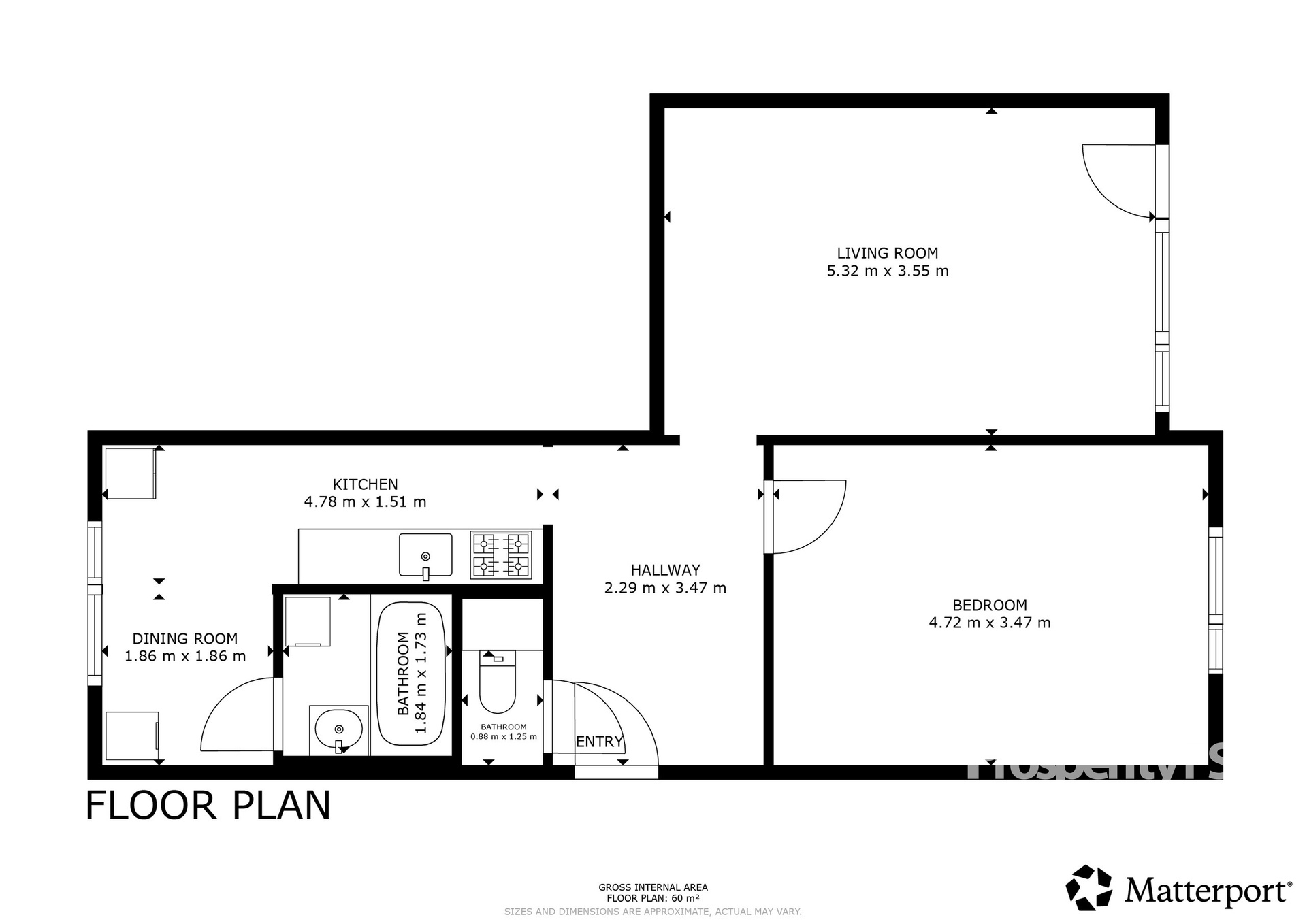
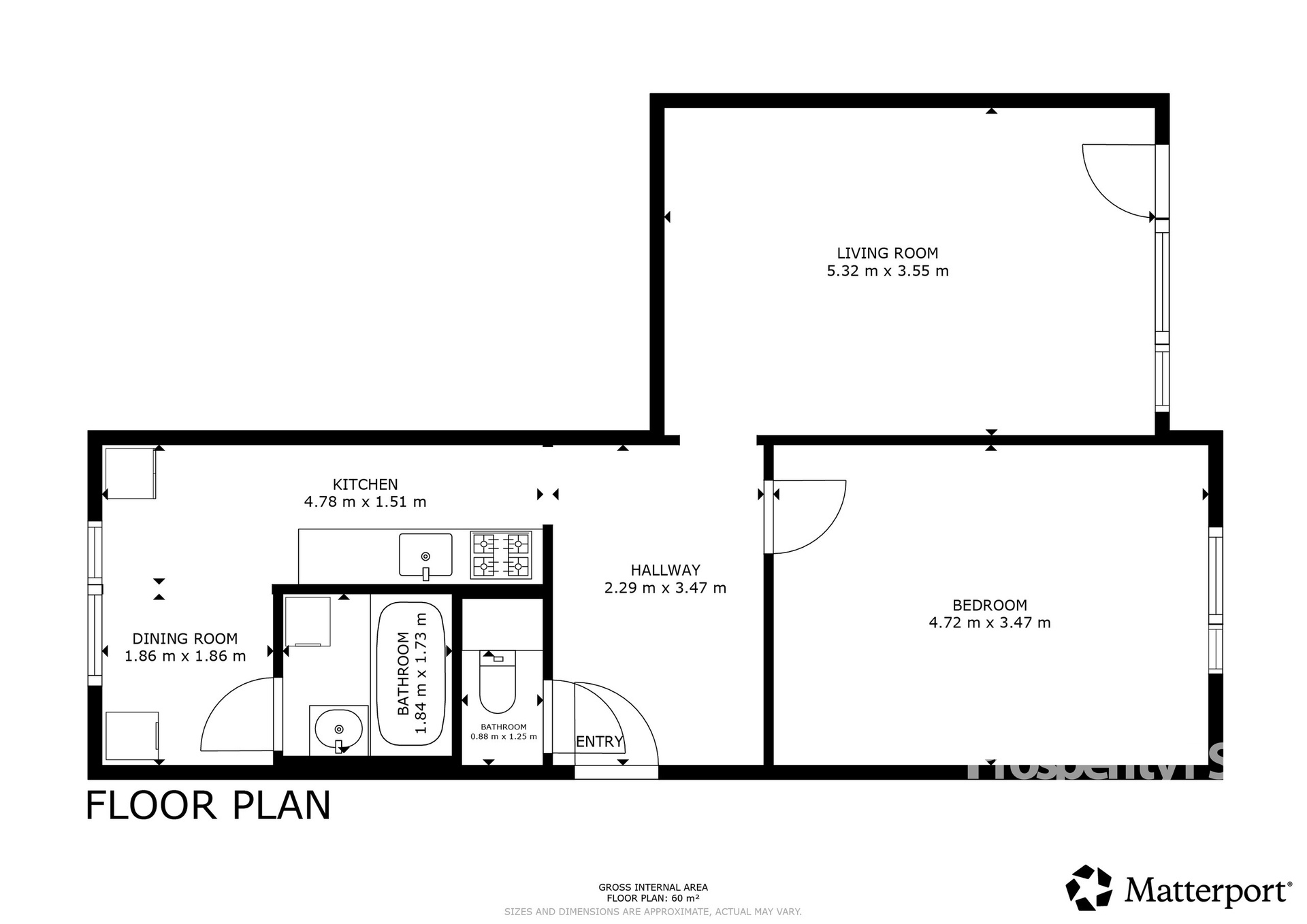
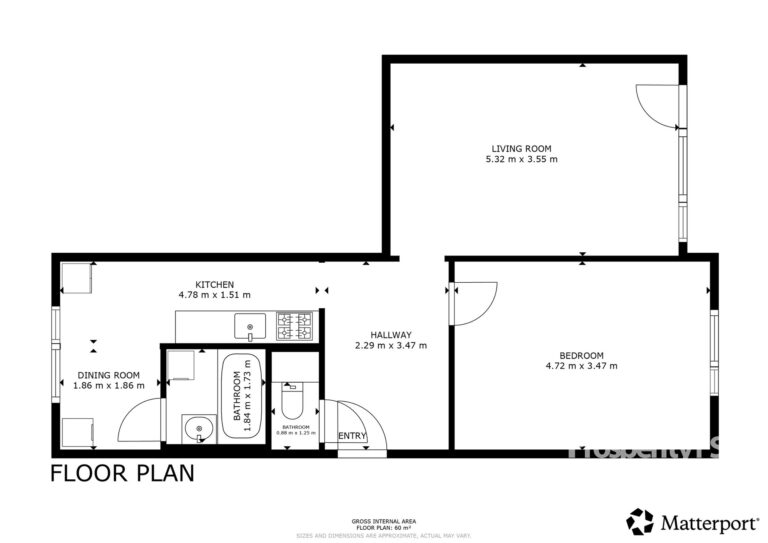
Nabízíme k prodeji světlý byt o dispozici 2+1 a výměře 64 m², situovaný v klidné části Litoměřic.
Byt prošel rekonstrukcí a nabízí praktické a funkční řešení dispozice. Velkou výhodou je zděné jádro, oddělená toaleta a koupelna, což zvyšuje komfort každodenního bydlení. Obývací pokoj je prostorný a díky velkým oknům velmi světlý, s přímým vstupem na lodžii, která poskytuje příjemné místo k odpočinku.
Další místnosti jsou dobře využitelné jak pro rodinné bydlení, tak i jako pracovna či dětský pokoj. Byt působí vzdušně a udržovaně, připravený k okamžitému nastěhování bez nutnosti dalších větších investic.
Velkým benefitem jsou nadstandardní úložné prostory – k dispozici je sklepní kóje a zároveň další úložný prostor v suterénu domu. Praktické je také umístění úložných prostor přímo na stejném podlaží jako byt.
Dům je udržovaný a nachází se v klidné lokalitě s dostatkem zeleně. V okolí najdete kompletní občanskou vybavenost – školy, školky, sportoviště i obchody. Výhodou je také pěší dostupnost historického centra Litoměřic během několika minut.
Měsíční náklady na provoz bytu činí přibližně 5 100 Kč dle předpisu .
Tato nemovitost je ideální jak pro vlastní bydlení, tak i jako investiční příležitost díky kombinaci dispozice, stavu a lokality.
K této nabídce máme připravenou kompletní dokumentaci, kterou vám rádi představíme ještě před prohlídkou.
Navíc se můžete projít bytem pomocí virtuální prohlídky z pohodlí vašeho domova.
Kontaktujte nás pro sjednání termínu prohlídky.
Parametry
| Okres | Litoměřice |
| Lokalita | Vrchlického, Litoměřice |
| Velikost | 2+1 |
| Užitná plocha | 64 m² |
| Podlahová plocha | 64 m² |
| Počet podlaží | 5 |
| Podlaží umístění | 2. NP |
| Budova | Panelová |
| Stav objektu | Velmi dobrý |
| Poloha objektu | V bloku |
| Umístění objektu | Sídliště |
| Zástavba | Obytná |
| Energetická náročnost | D - Méně úsporná |
| Ukazatel ENB | 130 kWh/m2 za rok |
| Ukazatel ENB - podle vyhlášky | vyhláška 264/2020 Sb |
| Vlastnictví | Osobní |
Fotogalerie
Máte zájem o tuto nemovitost?
Kontaktujte makléře
























