Popis nemovitosti
Představte si místo, kde ráno otevřete okno a místo dalšího domu vidíte zeleň. Kde děti vyrůstají v klidném prostředí, ale vy to máte všude blízko.
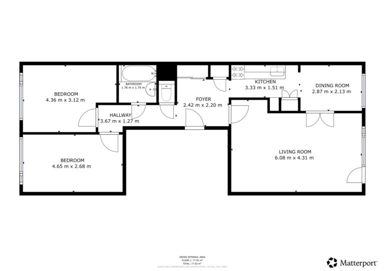
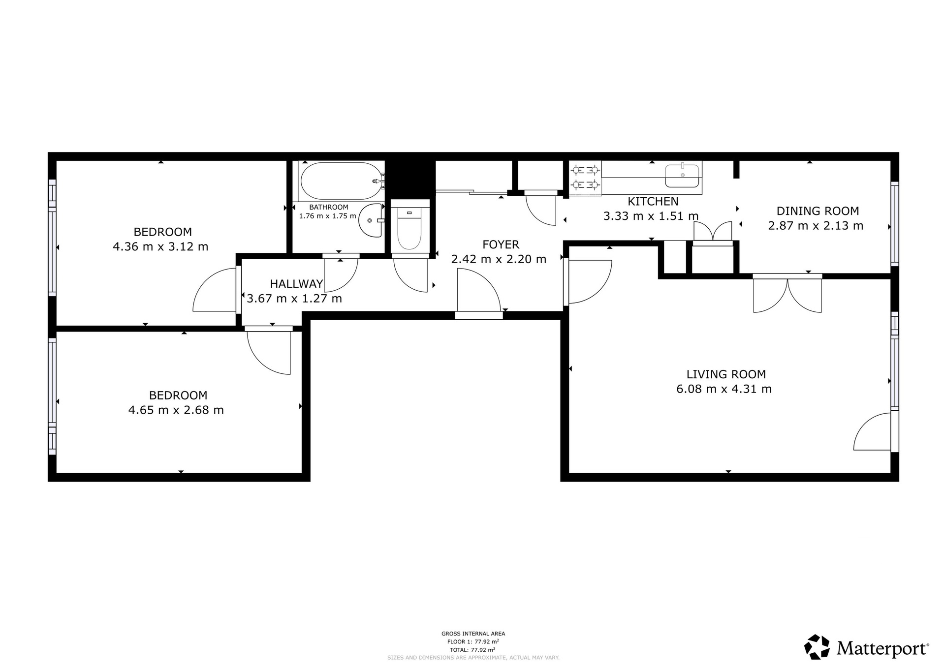
Tento byt o dispozici 3+1 a výměře 81 m² se nachází v 8. nadzemním podlaží panelového domu v ulici Toruňská. Díky vyššímu patru působí světlým a otevřeným dojmem, nabízí soukromí a příjemný odstup od ruchu města.
Z ložnice a dětského pokoje je krásný výhled do zeleně lesoparku – prostor, světlo a pocit volnosti. Zasklená lodžie po celé šířce bytu je dalším nadstandardním benefitem
Byt má zděné jádro a je připraven k finální rekonstrukci. To znamená jediné – můžete vytvořit domov přesně podle potřeb své rodiny. Navíc jednoduchou úpravou lze změnit dispozici na 4+1 a získat další pokoj pro druhé dítě nebo pracovnu.
Okolí domu je pro rodinný život ideální:
* školy a školky v docházkové vzdálenosti
* dětská hřiště přímo v okolí
* Lidl a další služby pár minut od domu
* metro C Kobylisy cca 10 minut
* rychlé napojení na D8 do 10 minut
Kombinace zeleně, klidného prostředí a skvělé dopravní dostupnosti dává tomuto bytu to nejdůležitější – potenciál stát se skutečným rodinným domovem na mnoho let.
Velkou výhodou je parkování v bezprostřední blízkosti domu, dostatek zeleně v okolí a několik dětských hřišť, které ocení především rodiny s dětmi.
K této nabídce máme připravenou kompletní dokumentaci, kterou vám rádi představíme ještě před prohlídkou.
Navíc se můžete projít bytem pomocí virtuální prohlídky z pohodlí vašeho domova.
Pokud hledáte prostor s potenciálem, přijďte se podívat osobně.
Parametry
| Okres | území Hlavního města Prahy |
| Lokalita | Toruňská, Praha |
| Velikost | 3+1 |
| Užitná plocha | 81 m² |
| Počet podlaží | 8 |
| Podlaží umístění | 8. NP |
| Budova | Panelová |
| Stav objektu | Dobrý |
| Poloha objektu | Řadový |
| Umístění objektu | Sídliště |
| Zástavba | Obytná |
| Energetická náročnost | D - Méně úsporná |
| Ukazatel ENB | 176 kWh/m2 za rok |
| Ukazatel ENB - podle vyhlášky | vyhláška 264/2020 Sb |
| Vlastnictví | Osobní |
Fotogalerie
Máte zájem o tuto nemovitost?
Kontaktujte makléře





































